Oportunidad!$315,000.00

Exclusiva finca rústica con proyecto y licencia para vivienda unifamiliar con piscina en entorno natural

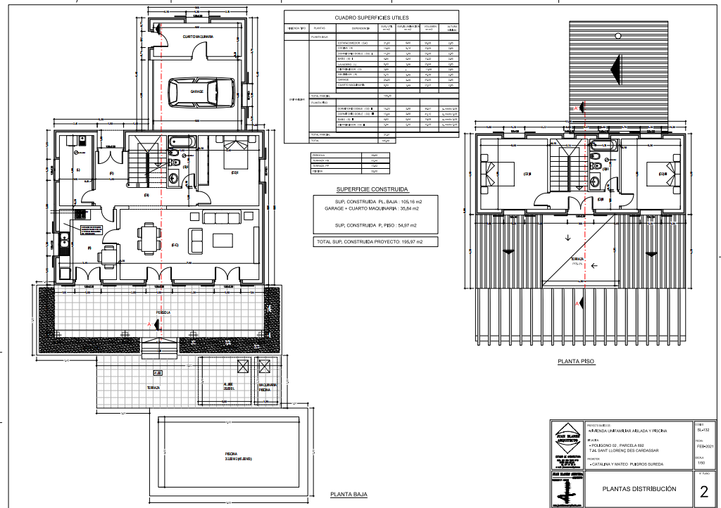
e ofrece espectacular parcela rústica en la zona de Son Carrió (Sant Llorenç des Cardassar), con proyecto y licencia para la construcción de una vivienda unifamiliar aislada con piscina, diseñada para disfrutar del estilo de vida mediterráneo en un entorno tranquilo y privado.

El proyecto contempla una vivienda de aproximadamente 195 m² construidos, distribuidos en dos plantas, con una arquitectura tradicional mallorquina combinada con espacios amplios y luminosos.

En la planta baja se proyecta una amplia zona de salón-comedor con acceso directo al exterior, cocina integrada, dormitorios y baños, así como porches y terrazas que conectan perfectamente el interior con el jardín.

En la planta superior se disponen los dormitorios adicionales y zonas privadas, con vistas despejadas al entorno natural.

En el exterior, el proyecto incluye:

Piscina privada
Amplias terrazas
Zona de pérgola y porche
Jardín y zonas ajardinadas
Garaje y cuarto de maquinaria

Todo ello sobre una parcela amplia, con gran privacidad y vistas abiertas, ideal tanto como vivienda habitual como segunda residencia.

� Ubicación privilegiada en una zona tranquila, rodeada de naturaleza, pero con buena conexión a los principales núcleos y a pocos minutos de la costa.

� Una oportunidad única para construir una vivienda a medida, con posibilidad de adaptar el proyecto a su gusto una vez obtenida la licencia.

Detalles

Precio : Oportunidad!$315,000.00
Estado : Disponible
Superficie : 16585 Sq Ft
País : Spain
Estado : Baleares
Ciudad : Son Carrió (Sant Llorenç des Cardassar)
ID de propiedad : 395

Estructura interna

Habitaciones : 3
Baños : 2

Buscar en el mapa

david
I consent to have this site collect my Name, Email, and Phone.

Compare Listings

Título Precio Estado Tipo Superficie Uso Habitaciones Baños